Skip to main content

CLARK - July 2017

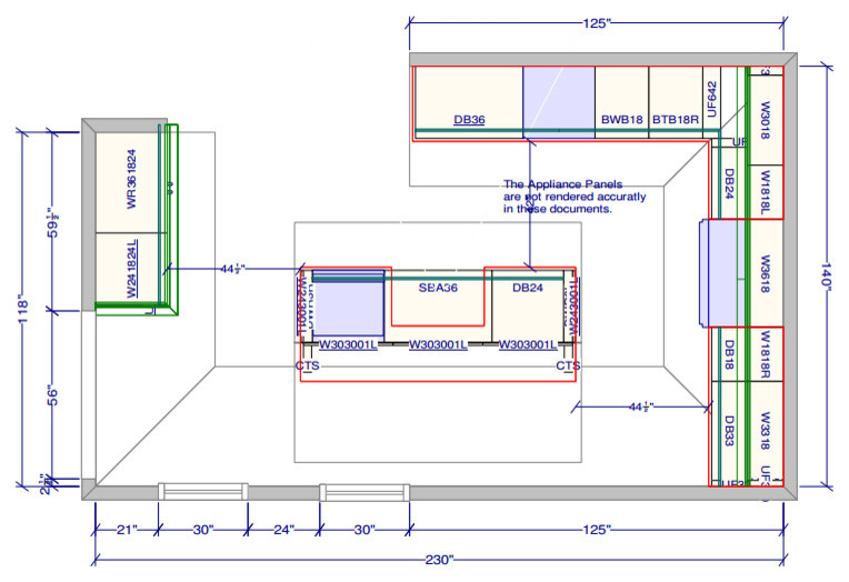
Appliance Panels were ordered to match the door style, I just couldn't get it to show visually in the renderings.